中国设计新青年优秀作品巡展| 常纯:彩色人生 韵雅色彩
常纯,恒远装饰的资深设计师,来自黑龙江省佳木斯市的他对于色彩有着自己独特的理解,在他带来的作品《甄彩》中,用现代混搭的风格诠释了他对色彩的运用。

设计师:常纯
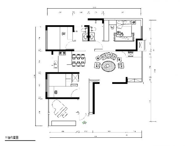
在140平米的空间内用欧神诺瓷砖,印象家居软装,柒莱家居互相搭配,像鸡尾酒般层层递进,调配出最佳的味道。
作品名称:《甄彩》
项目地址:湖南长沙
总面积:140 m²
设计风格:混搭

平面图
以 “色彩” 作为沟通和表现的方式,通过色彩和造型来设计空间,一套带有孟菲斯风的室内设计,反对单调冷峻的现代主义,提倡装饰。高明度的色彩组合、线条、图案的随机排列搭配、几何流线形元素的大量运用和空间填充,让空间有视觉变换。

客厅
客厅采用明艳的三色系进行混搭,红黄两色主打欢快活力,蓝色的沙发则给予空间一丝沉稳,减少一些跳脱感。采用的咖啡色底砖则是显得一份慵懒和一丝雅韵,呈现出欢快而舒逸的生活态度。

卧室
将客厅的颜色拆分,再把红蓝两色集合运用到主卧的混搭之中,主卧更显优雅和静谧,适合居住的同时多了一份轻奢的感觉。

次卧
次卧依旧是客厅颜色拆分后的黄色为基底,强烈而欢快的色彩和儿童欢乐的活泼与朝气相呼应,搭配上明亮的光线,将会带给孩子一个温暖而又有活力的幸福童年。

餐厅
民以食为天,而餐厅的装饰决定了一家人是否有充实的深层幸福感。红色背景墙增加食欲,蓝色的厨房砖台显示出一丝从容与优雅。做饭从来都不是什么苦累活,这是一家人满满的幸福之道。

卫浴
而卫生间依旧是红黄蓝三色的搭配,红色的背景墙呈现出贵妇般的华贵,金黄色的器具增添一分雍华,蓝色的储物柜则是在扩展储物空间的同时又增添一丝大气。
经典的红黄蓝三原色,在常纯设计师的手上变化多端,用彩色的韵律点缀了房屋的生气,现代混搭的风格并不一定需要多复杂的中西混搭,也不一定需要充斥着新旧文化的设计,用最简单的色彩就能搭配出最好的效果,这就是设计中大道至简的最优诠释。
常纯凭借《甄彩》这一优秀设计作品,强势出圈,成功入围2021中国设计新青年TOP100的名单。
向美而生,逐美而行。目前,中国设计新青年评选活动已成功举办三届,是一个优秀设计师交流成长的平台。中国设计新青年(2021)评选由广州设计周携手国际室内建筑师设计师团体联盟(IFI)、网易新闻、欧神诺瓷砖联合主办发起。《室内设计与装修 ID+C》杂志、太平洋家居、腾讯优居全程媒体支持。在这个为青年设计师定制的展示舞台上,优秀的作品将会大放异彩。

常纯,恒远装饰的资深设计师,来自黑龙江省佳木斯市的他对于色彩有着自己独特的理解,在他带来的作品《甄彩》中,用现代混搭的风格诠释了他对色彩的运用。

设计师:常纯
在140平米的空间内用欧神诺瓷砖,印象家居软装,柒莱家居互相搭配,像鸡尾酒般层层递进,调配出最佳的味道。
作品名称:《甄彩》
项目地址:湖南长沙
总面积:140 m²
设计风格:混搭

平面图
以 “色彩” 作为沟通和表现的方式,通过色彩和造型来设计空间,一套带有孟菲斯风的室内设计,反对单调冷峻的现代主义,提倡装饰。高明度的色彩组合、线条、图案的随机排列搭配、几何流线形元素的大量运用和空间填充,让空间有视觉变换。

客厅
客厅采用明艳的三色系进行混搭,红黄两色主打欢快活力,蓝色的沙发则给予空间一丝沉稳,减少一些跳脱感。采用的咖啡色底砖则是显得一份慵懒和一丝雅韵,呈现出欢快而舒逸的生活态度。

卧室
将客厅的颜色拆分,再把红蓝两色集合运用到主卧的混搭之中,主卧更显优雅和静谧,适合居住的同时多了一份轻奢的感觉。

次卧
次卧依旧是客厅颜色拆分后的黄色为基底,强烈而欢快的色彩和儿童欢乐的活泼与朝气相呼应,搭配上明亮的光线,将会带给孩子一个温暖而又有活力的幸福童年。

餐厅
民以食为天,而餐厅的装饰决定了一家人是否有充实的深层幸福感。红色背景墙增加食欲,蓝色的厨房砖台显示出一丝从容与优雅。做饭从来都不是什么苦累活,这是一家人满满的幸福之道。

卫浴
而卫生间依旧是红黄蓝三色的搭配,红色的背景墙呈现出贵妇般的华贵,金黄色的器具增添一分雍华,蓝色的储物柜则是在扩展储物空间的同时又增添一丝大气。
经典的红黄蓝三原色,在常纯设计师的手上变化多端,用彩色的韵律点缀了房屋的生气,现代混搭的风格并不一定需要多复杂的中西混搭,也不一定需要充斥着新旧文化的设计,用最简单的色彩就能搭配出最好的效果,这就是设计中大道至简的最优诠释。
常纯凭借《甄彩》这一优秀设计作品,强势出圈,成功入围2021中国设计新青年TOP100的名单。
向美而生,逐美而行。目前,中国设计新青年评选活动已成功举办三届,是一个优秀设计师交流成长的平台。中国设计新青年(2021)评选由广州设计周携手国际室内建筑师设计师团体联盟(IFI)、网易新闻、欧神诺瓷砖联合主办发起。《室内设计与装修 ID+C》杂志、太平洋家居、腾讯优居全程媒体支持。在这个为青年设计师定制的展示舞台上,优秀的作品将会大放异彩。


相关知识
东方女神郑韵:设计人生自带光芒
中国设计新青年(2020)年度评选启动,全国大咖聚力关注青年设计力量
2021中国设计新青年|属于当代青年设计师的希望之光
何文太丨中国设计新青年参赛作品赏析
“平安中国”2021中国消防品牌巡展雄安站成功召开
欧神诺瓷砖 | 2021中国设计新青年启动礼,探寻设计里的光
“探索服务陶瓷行业新模式、创新服务人民生活新举措” —“成就与梦想·中国精品陶瓷全国巡展”隆重开启!
探路天府之都《居住在中国》2021中国样板间设计大赛城市巡展来了
中国红木馆七周年庆头条:中国梦·书画万里行巡展热闹非凡
柏厨家居坚持色彩设计理念,使产品更具情感穿透力

