韦伯豪家园 现代简约
http://www.jiajupaiming.com 2021-03-25 14:00 家具排名
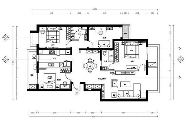
案例详情 原户型为三居室,设计师打破原结构,结合做了一个大的调整,由三居改为四居室,以黑白灰为主色调,配合局部石材局部金属材质,打造时尚居室!

客厅跨度较大,在沙发左侧设置展示柜,区域划分,柜子封闭空间储物,中间玻璃区域展示

次卧19岁男孩居住,深灰蓝色的硬包床头与灰色地板营造男性氛围,无主灯设计

主卧室业主希望可以温暖时尚敞亮,在色彩上选择米黄色米灰色,定制丝绒床头背景

卫生间没有窗户,选用的是流行色灰色和橙色,通过灯光照明增加质感时尚感

现餐厅区域是原主卫空间,入户较窄,浪费空间,优化后为餐厅空间,采光储物得到很大提升

业主是律师,四口之家居住,三居室空间优化成四居室,空间结构做了颠覆性的调整
相关知识
兴海家园 现代简约
明日家园 现代简约
新悦家园-现代简约-三居室
现代简约-三居-温馨家园
【相来家园】现代简约 跃层/loft 150
北京实创装饰南海家园140平现代简约
北苑家园 50平米简约装修效果图
嘉里星源汇-现代简约-二居室
南海家园
东湖湾-现代简约-别墅

相关文章推荐