上河村 现代简约

客厅空间非常完整开敞,天花在满足包裹设备的基础上做了简单的线条处理,采用磁吸轨道灯的形式,让空间照明更加简洁灵活,照度更加重点突出。通铺的灰色地砖让空间更加统一安静。

主卧空间客户追求舒适性,采用了美式家具。采用皮质硬包作为床头背景,让空间更加舒适,同时也具备了一定的隔音效果。天花造型保持和天花同高,让天花与墙面更加完整。空间采用低功率多点照明的形式,让空间照明更加舒适。

书房空间采用整体家具设计形式,让吊柜不在独立,让书柜延续变化之美。深色的书桌让思绪沉定下来,引导着你在这里学习与思考。

次卧空间延续着简约的气质,整面的灰色墙面就是空间的主角,两侧沉稳的台灯让空间更显的平和素朴。

开敞厨房的规划提升了厨房空间的利用率,岛台操作更加便捷多样。餐厅与岛台配合形成空间的重点。迎合简约的吊顶方案灯具选择更加突出简洁和线条感。餐椅的橙色牛皮材质让空间丰富了很多。

入口门厅从入口处和餐厅两处都是可观赏的角度,所以综合考虑采用壁画延伸的形式,让门厅空间灵动且富有新颖感。配色上采用博洛尼烟熏橡木的材质为空间主色,配合白色天花,雅士白石材,灰色地面让空间更加素雅简朴,材质本身的质感成为了空间的主角。

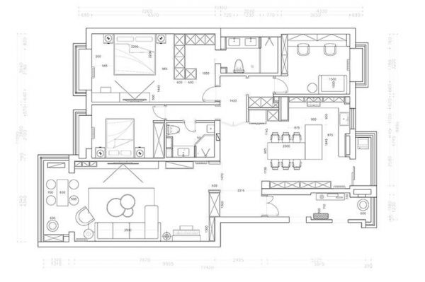
本户型原始功能划分相对合理,但局部尺度和厨房的规划相对不太合理。入口正对客厅空间,采用鞋帽柜将空间隔离,使得各自空间更加完整合理。将厨房空间和餐厅共享,做开敞厨房。客厅阳台设置饮茶区,丰富空间功能性。将次卫生间门改到空间中间位置进入,提高次卫空间的利用率。
相关知识
上河村 现代简约
国奥村-现代简约-三居室
爱心企业送温暖,一路扶贫一路春——泰木谷富村计划梁家河站
【国奥村】欧式简约 四居室 170㎡
丹河新城郑州招商吸引河南名企目光
东湖湾-现代简约-别墅
营商环境引凤凰 丹河新城靓中原
黄埔区新龙镇金坑村旧改破题 金坑生态文化实践区呼之欲出
【国奥村】美式 四居室 200㎡
黄埔区新龙镇金坑村旧改 产城融合 康养、生活、文教三区叠加
