德国印象 现代简约
http://www.jiajupaiming.com 2021-03-17 11:00 家具排名
案例详情 现代德式的外立面,暖灰色系的现代木制家具结合大面积的景观玻璃,把室内和室外的空间和景观融为一体,整体感觉温馨大气简洁明快

此图为一层餐厅效果图,在设计中保留了原有的抬高,并且加入梯步后显得空间更有层次感。

此图为三层主卧室效果图,设计中把卧室前面原有的墙体拆除,扩大了空间前面的宽度,设计了半开放式的衣帽间和卫生间。

此图为一层客厅效果图,空间以暖色系为主,以木质的材质作为家具和装饰,使空间呈现出一种温暖舒适的感觉。

此图为三层书房效果图,原有的空间采光并不好,所以在设计中扩建了搭建了露台,把原有的墙体拆除,变成了大的落地窗,增加的采光。

此图是从二层眺望一层客厅的一个视角,在挑空层旁边放上了休闲沙发,显得格外的惬意。

此图是从一层花园入户后,客厅的正面效果图,从这个角度上看客厅的效果极为自然,木色系的材质加上窗户引入的自然光线,显得空间格外的温暖。

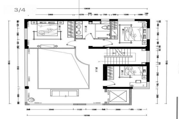
此图为三层平面布置图,拆除了原有的外墙结构,扩建了露台,加入了落地窗设计,让整个空间与自然光线融合在一起。

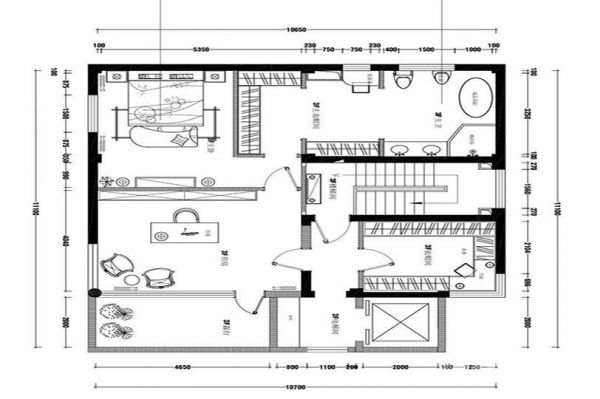
此图为二层平面布置图,在原有的结构中,采光并不好,在搭建楼板扩建后,曾江了光线的处理,也扩大了空间,增加了实用性。

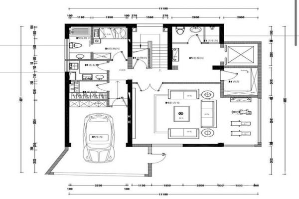
此图为地下一层平面布置图,拆除原本零碎的空间隔墙,把空间合理的规划,左为“静”,右为“动”。

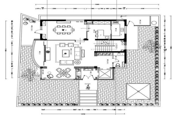
此图为一层平面布置图,在设计中,把原有的室外露台拆除了,扩建后,加入了电梯设计,使业主及业主家人能够出行更方便。
相关知识
德国印象 现代简约
F16 Home 德国现代实木家具之崛起之路
75平现代简约风格老房装修
73平现代简约风格老房装修
80平现代简约风格老房装修
德诺特·岩石印象:简约轻奢,极致品位
现代简约
现代简约-四居-李静的现代简约作品
现代风格家居设计——温馨的家
98平米现代简约

相关文章推荐