上海38㎡老旧二手房,居然被女屋主改出三间卧室,太厉害了!
套内面积只有38平米的户型也就是间单身公寓,但上海的这位女屋主却把它改出了三间卧室,厨房、餐厅、卫生间一样都不少,完美解决了二胎家庭不够住的问题,想想还真是厉害。下面就和“未来家装网”一起来看看这套38平米的老旧二手房居然改出了三间卧室的装修设计案例!

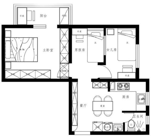
先来看看本案的户型图,在原来的客厅中间设置了一面墙,从而隔出了两间卧室,确保女孩和男孩都有相对私密的空间。虽然没有了客厅,却完美解决了二胎家庭卧室不够的问题。

进门就是餐厅和开放式厨房,整体以白色为主来设计,避免因色彩过深让空间变得阴暗。在餐桌一侧的墙面定制了一组储物柜,解决部分家居物品的收纳问题。


卫生间位于厨房的一侧,面积虽然非常狭小,却也基本能够满足使用要求。餐桌的另外一侧,放置了洗衣机、电冰箱,更安装了浴室柜,有些拥挤但空间利用率更高。

主卧室的装修效果,配色时尚靓丽,整体的设计效果还有点轻奢风的质感。

男孩房的装修以蓝色调为主来设计,两间儿童房中间的隔墙上安装了玻璃窗,增加了室内的采光。


女孩房的装修以粉色调为主来设计,简洁明快又特别活泼。
两间儿童房都没有采用榻榻米来设计,体积不大的单人床,并且配置了书桌以满足小朋友学习的使用要求,墙面安装了吊柜,增加收纳能力。
相关知识
上海38㎡老旧二手房,居然被女屋主改出三间卧室,太厉害了!
84平现代新房,小户型装成大豪宅,太厉害了!
衣柜这么设计太机智了!布局合理收纳增加了二倍,师傅太厉害了!
餐桌上放它财气提高一倍!太厉害了,有钱人都这么放!
女老赖家住300平豪宅 装修百万家具却欠80万不还
女老赖300平豪宅被查 家具都值百万却欠80万不还
2020年上海普通住宅标准调整 上海买二手房应注意哪些
开局胜负已分?海尔热水器1小时全网份额第一,厉害了!
开局胜负已分?海尔热水器1小时全网份额第一,厉害了!
38平装出大气派单身居所

