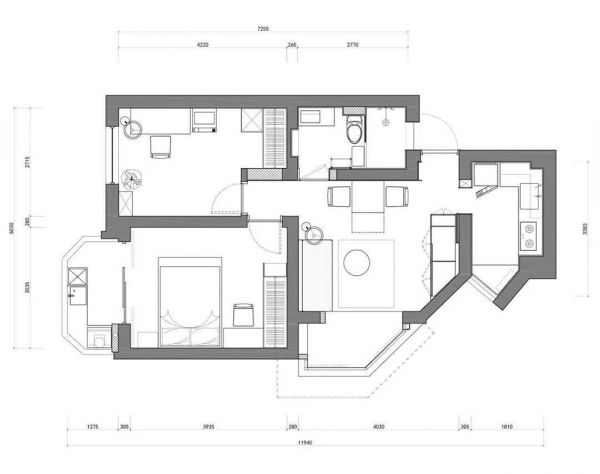
54㎡两房一厅,空间舒适细节考虑周全
客厅没有特定的风格,以舒适简约为主。墙面选择的壁纸装饰,大部分是米白偏灰,沙发背景墙则采用偏灰绿的壁纸,让空间色彩不单一。
阳台纳入客厅新建地台,高度与沙发保持一致,整体感更好。地台可休闲、可收纳,原木色调又增添了几分自然舒适感。
餐厅简单实用,选择的伸缩式餐桌,可以展开到1.3m,对小户型来说还是很不错的,可以适应小型家庭聚会。
餐厅墙面做了一整面护墙板,同步将卫生间门隐藏起来。墙上做了拉槽处理,与隐形门门缝形成一体,整体效果更美观。
厨房由于玻璃移门做了隐藏设计,看着就好像是开放式厨房。冰箱左侧墙面只有40多公分,无法掩盖冰箱侧面,因此延展做了隔板柜补足空间,视觉效果更美观。
主卧简约清新,家具和软装搭配,又让整体不失格调。衣柜屋主根据生活习惯,自己画图让木工现场制作,白色烤漆柜门搭配铜把手,还是相当精致耐看的。
次卧暂时布置成书房,可移动家具为后期改造成儿童房提供了方便。舒适的转椅,简易的电脑桌,搭配落地书架,简单实用又耐看。百叶窗灵活可控,相比布艺窗帘更适合现在的空间风格。
卫生间拆除了原有隔墙,改成一整间的干湿分离的卫生间。利用通透的玻璃隔断,空间更显宽敞。定制浴室柜满足空间尺寸,人造石下凹台盆,颜值高清洁也方便。
90年代的老房子,砖混结构可改造性并不大,况且房子位于二楼,墙体几乎不可拆除。
相关知识
54㎡两房一厅,空间舒适细节考虑周全
54㎡的轻古典小户型公寓
54㎡现代简约小资休闲式的浪漫通常在美剧
团结湖小区54平地中海风格赏析
54平的工业风小户型公寓,水泥墙带来独特质感
家庭热水真不简单!建博会上体验海尔水联网,做得很周全!
14天打造环保品质空间!业之峰参与央视《秘密大改造》
简单实用,细节贴心,为父母打造最温馨舒适的家!
爆改小2m²卫生间,秒变温馨舒适
一个舒适实用的卫生间,细节很重要!

