89平米日式两居室装修案例
http://www.jiajupaiming.com 2021-02-25 23:00 家具排名
案例详情 这是一套89平米的小户型装修,设计手法简约,杏黄色系充盈整个空间,色彩明亮舒适,也能住的舒心惬意。设计师在不做过多复杂饰面造型的情况下,采取了简洁白色墙面的做法,凸显出颜色和材质的美。软硬装张弛有度,营造出舒适温馨的日式家居飞卫。这套房子是学区房,两个宝宝,为了孩子住的舒适些,客户夫妇把主卧当做儿童房。空间动静线分区很棒,功能齐全

电视柜和上方做了简单的储物以及搭配。整个空间和谐舒适

客厅选择简洁的白墙和小型沙发,主要是给孩子留足够的空间

整个空间有一个大柱子,设计师依柱子做餐厅空间。使原本单一的空间变的丰富起来

原本是主卧,因为是两个孩子,所以选择主卧安排两个孩子住

次卧做了客户夫妇的主卧,刚好够用。空间以白色和原木色为主色调。

阳台布局简单,一切以舒适、自在为前提。阳光充足的阳台成了孩子的学习的地方

进门设置了独立的玄关,空间简洁大气,白色显得空间非常靓丽

餐厅顶部的吊顶,把餐厅和过道归纳为一个空间,餐厅空间也紧紧挨着厨房,极大的提高了整个餐厅的空间利用率。

厨房延续整体设计感,色调和选材靓丽简约,非常舒适

卫生间干湿分离采用浴帘的形式,不破坏空间感。选择的灰色瓷砖,空间干净清爽。

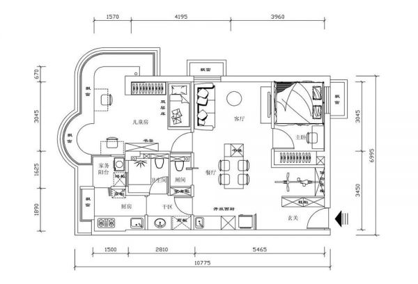
【户型图】 空间格局为两室两厅一厨一卫,依柱设计的餐桌客户夫妇非常满意
相关知识
89平米日式两居室装修案例
89平米两居室装修案例
89平米两居室现代风格装修案例
95平米日式两居室装修案例
89平米现代风格装修案例
89平米北欧风格三居室装修案例
89平米现代风格三居室装修案例
89平米现代两居装修案例
82平米两居室装修案例
85平米两居室装修案例

相关文章推荐