113平米现代都市

客厅的地板起到一定要点缀的做用,55寸的大电视也是亮点之一,性价比都不错

吊顶采用的是轻钢龙骨的形式做的,设计的四边的的灯池,里面可以暗藏灯带,晚上亮起来感觉非常不错

灰色的背景墙也是为了和其他地方进行呼应,现代的风格的首选色彩,比较常用的手法之一

客厅采用了白色的墙面,和红色的地面进行点缀,地板采用了是爱格的地板,环保性比较可靠

餐厅也是非常大的,看上去非常简洁,多面样块拼出来的面板,也是别具一格,非常好看

餐厅使用的是,蒙娜丽莎的瓷砖,这款瓷砖的作用就是防滑,也是这这款瓷砖的卖点之一

这是一个小的休息区域,看看书,喝喝茶的好地方,白色的茶几也是和白色的墙面形成一体的色彩

背景墙肯定是最吸引人瞩目的地方,当然也是点睛之笔,一抹红,在中国也是喜庆的颜色,很多人都喜欢

主卧室采用了爱格的地板进行装饰,豪华,穿的地边,还有一圈64色的氛围灯,非常浪漫

loft户型,空间大舒服,气派,楼梯的设计采用得到是金属拉丝的设计,性价比非常不错

橱柜是英迈定制的品牌,这个色调和家里这次的主题非常的搭配,给你一种清新自在的感觉,做饭的时候,也非常开心

厨房的门是推拉门,尺寸也是非常大的,红色的门框,也是和旁边红色装饰进行了一种呼应

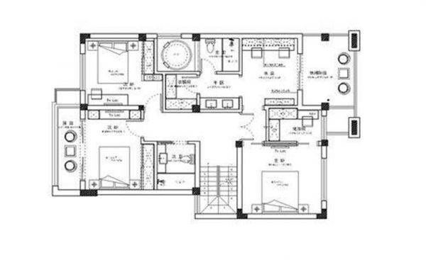
【户型图】 三居室的房子,面积很大,适合居住,豪华大气,加上南北通透的户型,非常完美
相关知识
113平米现代都市
113平米现代简约风格装修案例
140m?都市现代风,低奢的大气
再现现代都市的摩登风情,前卫而典雅。
每个都市 都有故事 美克家居A.R.T.成都都市店全新面市
“一展双品”都市王朝成都家具展完美绽放
VENNGER温歌:为都市新贵族量身打造新时尚
现代简约江景名宅,重塑都市精致生活 | 设计师曹雪芹
【YASLAN】一同寻找星辰大海间属于你的都市淡雅
现代风格两居室
