88平米三居室装修案例
http://www.jiajupaiming.com 2021-02-05 17:01 家具排名
案例详情 这是经过改版了很多次的呈现,男业主是完全按照女业主的意思来,挺羡慕他们的感情,男业主按照女业主的想法女业主照顾男业主的喜好俩人互相迁就,整个装修过程非常和谐女业主非常注重收纳,家里所有的空间都完全利用起来了男业主喜欢简单而又有质感的颜色所以柜体的颜色采用了深原木色系整体非常有质感

客厅连着餐厅整面墙做满了柜子,既起到了装饰的作用收纳很足

酒柜连着电视柜,柜子的颜色选的白色加咖色真的很有质感

卧室里的白色衣柜配上整体灰色的风格非常的好看 衣柜的收纳空间非常的方便

鞋柜连着酒柜,每个角落都利用起来了 ,木板和墙漆的配合非常的好看

卧室的设计整体以灰色为主 飘窗的设计 休闲时间还能坐着看下风景

灰色的墙漆 配上墙上的狗狗壁画 以及床品的巧妙搭配,让空间效果更加丰富

这个房间做了个小高窗,记得小的时候就梦想睡这种高床啦

厨房在结构设计上摒弃了所有不必要的繁复枝节,尽可能的让空间化

卫生间与客厅保持同色系,空间虽小并不显拥挤

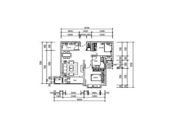
【户型图】 整个装修过程非常和谐女业主非常注重收纳,家里所有的空间都完全利用起来了男业主喜欢简单而又有质感的颜色
相关知识
88平米三居室装修案例
88平米现代风格三居室装修案例
88平米两居室装修案例
日式风格88平米装修
130平米三居室装修案例
85平米三居室装修案例
120平米三居室装修案例
125平米美式三居室装修案例
130平米现代三居室装修案例
115平米现代三居室装修案例

相关文章推荐