YueFuu餐饮设计新作|虎刈台式便当小酒馆

结合台湾在地传统小吃摊的烟火气息与上海抖音江湾里商场的时尚潮流定位,为委托方虎刈,在上海杨浦区落地了台式便当小酒馆的餐饮店全案设计,针对职场年轻人提供平时用餐的好去处。如何在异地勾勒出家乡的温暖与特色,同时也能融入在地文化,所以从中提炼了三个关键词:融合、 多元、在地性。

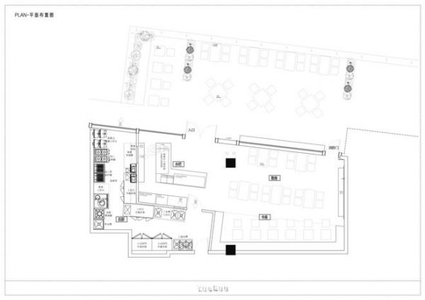
室内空间分为30%后厨70%室内用餐区与接待区,后厨尽可能高度利用空间,用餐区规划了水吧区,卡座区,以及散座区三大功能区域,同时卡座区与散座区享有最大面玻璃窗的视野。
融合
小吃最让人津津乐道的就是便利性与高性价比,还有热情的老板老板娘的吆喝声,构成了台湾小吃的特色。 把交流与互动的特点与小酒馆的营业性质做了巧妙的融合,所以在对外的一大片窗户设计了木质折叠窗,天气好的时候可以打开享受阳光有个美好的用餐体验,到了晚上就变成小酒馆,方便大家互动交流,平时天气不好的时候关上隔栅窗,也是非常抢眼的装饰门面,与上海海派文化包容的用餐体验不谋而合。

利用项目最大特色的一面窗,设计了具备台湾在地文化又不失时尚潮流的门窗设计,引起用户的好奇感与探索欲望,愿意进店体验消费。

开放的隔栅窗,为白天晚上提供了多元互动方式。既复古又时尚的门面,吸引人驻足往内探索。

入口为迎接的酒吧台,墙上的亚克力menu为考究台湾小吃摊的点菜单。

室内整体调性简洁又不失潮流时尚。
多元
在装饰材料的选择上,选用了手工感的材料,水泥、陶土砖、手工釉面砖与桦木海洋板的相互碰撞,营造出烟火气又不失精致的小吃店。 灯光运用大量利用品牌的标语,采用了霓虹灯,营造出小酒馆的氛围,同时也加强品牌的年轻潮流既视感,辅以复古吊灯以及轨道射灯,补充环境与功能光源,在这里职场年轻人可以更好的感受城市的气息,尘封的记忆在某个瞬间被唤起,城市的紧凑局促感可以在这里稍作休憩与转换。


精心研究的文字,把不起眼的回收餐盘窗口也变成一处有趣的景观。


散座与卡座景观位,水泥,木头,陶土砖,手工釉面砖,霓虹灯,营造轻松,温润又不失潮流的店铺。


从卡座区望出去最好的景观位置。

灵活的隔栅窗,增添店铺运营的多元性,也是一道美丽的装饰打卡点。
在地性
为了让人感受到小吃摊的特色,在一些装饰细节上也特别显用心,譬如入门口的怀旧亚克力菜单,功能上便捷更换;卡座区域地面的陶土砖,让人感受到最接地气的氛围;不加装饰的镀锌铁皮台面,触摸最纯粹的材料质感… 等让品牌文化特色见微知著。视觉传达上选用了些有趣的文字,譬如入虎口、出虎穴、立吞台… 等字样,分布在各区的功能窗口,犹如画龙点睛,在互联网时代短视频蓬勃发展的背景下,帮助品牌传达更容易深入人心。结合以上设计语言的表达,我们希望能用这种方式使得空间为职场社区服务,向邻里传达台湾在地文化的特色,同时引起用户的好奇感与探索欲望,原意进店体验消费。

从室外往透过隔栅窗往里的景观。


到了晚上转换为台式小酒馆状态。
项目信息
品牌:虎刈Tiger bites
地址:上海杨浦区江湾里民府路602号T3-1F-04
完成时间:2023年12月
面积:100㎡
设计公司:YueFuuDesign
设计团队:蔡岳峰、张帅杰、皇甫晓倩
施工单位:上海岳立创意设计有限公司
相关知识
YueFuu餐饮设计新作|虎刈台式便当小酒馆
【10强排名】创意满分的小酒馆设计公司名单
BAGO 新作丨Yue feast one number餐厅
柏高建筑空间设计新作丨艺阳瑜伽
柏高建筑空间设计新作丨盛世鸿源洗浴会馆
柏高建筑空间设计新作丨视觉上的艺术馆-名都·喜乐汤
最新餐饮设计排行榜|国内十大餐饮设计公司
为什么不能随便当伴娘 当伴娘要做些什么
餐饮品牌设计/餐饮vi设计公司有哪些!
BAGO 新作丨花开蔓妍 悦色灼灼

