国标优居爆改小户型,一居变三居其实很简单!
相比于大户型的面积优势,小户型其实更需要好设计。小户型的大致设计方向多半都是围绕着省空间、通透性、以及便捷性而来。而今天要介绍的这套房子,正是小户型「大格局」的典型案例。
这套房子位于芍药居附近,业主是一对中年夫妻,为了孩子上学一家人暂住于此。原户型只有一室一厅外加一个小储物间,业主要求在满足正常生活需求的情况下,增加两个卧室,满足奶奶、孩子以及业主小两口居住,尽可能多的增加收纳空间,并且希望在增加房间的情况下还能让空间不显得拥堵。
由于改动较大,对空间要求比较苛刻,且有老人与孩子共同生活对装修用料的绿色健康等级同样要求严格,权衡之下业主最终选择了国标优居,一方面是对国标优居“绿、快、好、省”技术的放心,另一方面更是对央企公司口碑、品质的信赖。

△原始平面图

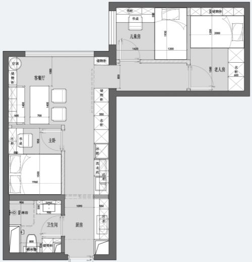
△设计后平面图
对国标优居来说,这是一项既兴奋又充满挑战性的任务,除了需要考虑如何将他们的个性融入设计中,同时也要兼顾实用性和舒适性。小户型的缺点就是空间小,采光也不一定好,因此整个房间的色调不能采用大面积深颜色,白色、米色、原木色都是不错的选择。
这套案例的入户玄关处是一个一字型开放式厨房,洗菜区与烹饪区用玻璃门隔断,可以有效阻挡油烟的扩散。原木色与白色的橱柜搭配,通透明亮,视觉上不会显得逼仄狭小。



玄关左侧是卫生间,采用灰白作为主色调,与厨房深浅呼应达成视觉差,在空间分区的基础上,也用颜色做了明显的功能分区。



再往前就是客厅区域,由于业主需求,一居室空间分化为三居室,所以客厅让出部分面积给卧室,并在隔墙上开一扇内窗,解决采光与通风问题。考虑到老人与孩子的作息不同,封闭式的卧室更利于休息。国标优居通过合理的结构设计使得整屋采光明暗有度,功能分区各司其职且畅通无阻。



对于业主的收纳需求,国标优居采用全屋个性化定制方案,对于边边角角都充分利用,不浪费房屋面积,在现有基础上做到最大的收纳面积。且木作全部采用ENF 级板材,国标严选绿色辅材,完全不需要担心环保问题,老人和小孩都可以放心入住。


装修房子的初衷都是在能力范围内给家人最好的生活,选择国标优居亦是如此,作为央企我们的初心就是“从全家人的生活习惯和需求出发,在这个充满想象力和延展性的空间中,包容着一起成长的时光和所有美好。”
关于国标科技:
国标科技作为装配式内装修领域高端集成服务商,主要从事标准化咨询与内装设计、部品研发与销售、装配式内装修EPC等业务,致力于服务国家战略,引领行业发展。也是全国唯一央企直营家装品牌,《装配式内装修技术标准》第一主编单位。
通过不断的技术积累与工程实践,国标科技打造出了居住、办公、文教、康养四条完整技术体系,拥有完备的供应链系统及成熟的建造工艺产品线。2023年,为进一步实现装配式内装服务落地,积极推进绿色家装的发展,响应国家战略,重磅推出全新家装品牌——国标优居。力求通过绿色化的装修理念、工业化的制造流程、装配化建造过程,为每一位百姓打造安全、健康、专属的生活环境。
相关知识
国标优居爆改小户型,一居变三居其实很简单!
爆改小2m²卫生间,秒变温馨舒适
国标优居精心打造:满足六口之家的“神级”收纳原来长这样
两居改一居,住起来舒服多了
现代简约-三居-清凉盛夏
125平北欧三居,简洁实用
两居改三居,收纳、动线做得好,住下三代
136平米简约风格三居装修案例
120平米简约三居风格装修案例
56㎡两居改三居,收纳、动线做得好,住下三代

