马克作品 | 新中式自然栖居,悠然山水,心向往之

东方的居住哲学,追求“自然而然”。

以灰白色为底色,低调优雅的美在传统与现代之间游走,新中式的浪漫默默地体现出人们对家的追求。
素描、网格、留白的独特手法被巧妙运用在墙面、地板,激发出美的波澜壮阔。

客厅采用了回游的动线模式,仿佛置身于有山有水、有山岩有青松的园林中,让空间表现出融于自然的开阔感。

晨曦穿透薄雾,轻拂过掩映着的木制格栅,远山将隐未隐,劲松苍翠欲滴,更显清美。

于静谧幽室中参悟哲思,竹影简松为伴。如同一个幽静深山之中一方修行禅房,净化着都市人的心灵,营造出以一个现代版君子居所。


负一层空间围绕着休闲功能展开空间布局。岛台与红酒柜,钢琴与休闲客厅,影音室与阳光房,烟火气的生活之外,在这里展开关于艺术生活与品质生活的延伸和落脚。

墙壁制收纳柜以展示收藏品的方式,为主人的心爱之物增添光芒,在艺术装置的烘托下,浪漫韵味在空间中弥漫开来。


曲线元素在餐厅突显圆满之意,水墨画的山水意境,透出淡雅与平和,在这种氛围中,一家人围着把酒言欢,人生的追求不过如此。







传统文脉与曼妙风华的邂逅,在设计师动人的笔触下,再现超然脱俗的东方美学意韵之境。

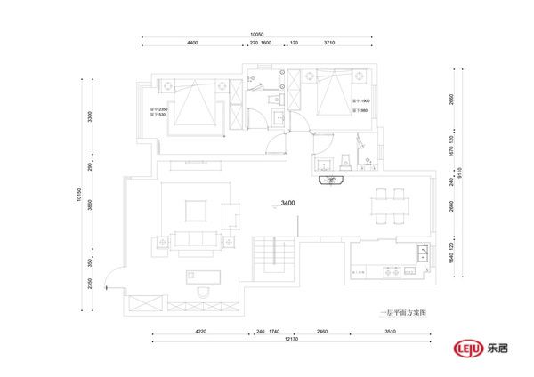
△一层平面

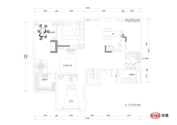
△二层平面
项目名称:恒大盛京世家
项目位置:浑南区香堤路199号-10
项目面积:250㎡
设计时间:2021年
设计师:马克
设计公司:赫慕空间设计

马克
赫慕空间设计创始人/设计总监
2022 中国住宅设计效果大赛优秀奖
2021“ID智能家居设计奖”城市十强
中国家装设计百强品牌(2021-2022)
相关知识
马克作品 | 新中式自然栖居,悠然山水,心向往之
秦子童作品 | 诗意栖居,纯粹的生活方式
tbh野兽派家居释出2022早春大片,井柏然演绎东方悠然生活
【YASLAN】惊艳众人的新中式,华丽低调的东方魅力
2020「酷+创造营」先锋设计师选拔-岳琳-山水情结
DANDI HOME | 400㎡新中式别墅大宅,用心打造的意境美
新中式风格的客厅沙发背景墙挂画大赏,端庄大气恰到好处
【领绣·菁华】两岸青山|必须推荐给你的新中式背景
“中国新中式红木家具新意思设计奖”揭晓
CBD家居 | 诗意栖居,感受隐于空间的自然之韵

