时间在变,唯经典永恒
"I understand that times have changed and we have evolved. But I don't want to forget the beginning. A lasting building must have roots. The more national, the more global."
我理解时代变了,我们进化了。但我不想忘记开端。一个持久的建筑必须有根。越是民族的,越是世界的。
——贝聿铭
THE STORY OF SHUYU

越是民族的,越是世界的。不只是建筑,家居也是如此。新时代下的东方人居美学,正掀起一场东西方文化与艺术的融合之旅。
THE BALCONY|阳台

时间在变,唯经典永恒
Time is changing
Only classics are eternal
风格会随着时间变化,而内在精神永不落幕。浓厚的传统文化底蕴,与现代潮流的生活方式融合,见证了新时代下的人间烟火。
THE LIVING ROOM|客厅

真正的潮,是独立思考
The real trend is
independent thinking
追求个性不是单纯的抵制潮流,而是在潮流中不丢弃自己,独立思考。东方人居美学所打造的新国潮家居,在探索世界的同时,更注重自我精神领域的打造。
THE DINING ROOM | 餐厅
真正的经典,不是一眼看穿
Real classics are not seen
through at a glance
真正的经典,是一种沉稳、克制又耐人寻味的美。凝练的色调、舒适的质感,将灵动、纯粹交融为一,给人优雅而极致的高级感。
THE READING ROOMS

真正的高级,是极致的细节
The real high-level
is the ultimate detail
真正的高级,深藏在细节里,有一种耐得住时光打磨的魅力。国际新中式的精美设计与华贵质感,优雅不媚俗,蕴藏了无数可能,沉淀出一种坚毅又柔软的文化力量。
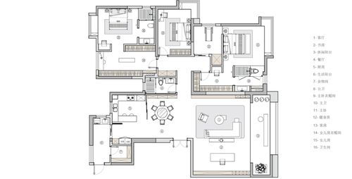
原始平面图
平面规划

相关知识
时间在变,唯经典永恒
致敬经典,CG家居为世界缔造永恒美感
经典永恒 看一统国际家居传承爱的中式家具
简短唯美的婚礼誓言 婚礼上的誓言经典语句
德国唯宝亮相2021 HOTELEX,经典餐瓷潮流设计引领新风
国潮来了!红木是您永恒的气质!
科翔墙布:经典风格,永恒时尚
经得起时间考验的经典 德国百年橱柜品牌ALNO亮相2020设计上海
筑入时间源于经典美克家居A.R.T.2022筑源郑州新品发布会
永恒新经典 再续光与影的故事 Louis Poulsen 2022春夏新品

