[家具相关知识] 居然之家+京东=? 创享智能家居线下消费空间
08/16/2021 17:29
8月13日,居然之家自营业态尚屋智慧家与京东科技IoT达成战略合作,双方在合作建店、供应链整合、数字化建设和流量运营等方面达成一致,携手打造智能家居体验空间。 在万物互联的当下,不少头部企业都已...
>> 查看全文
[家具相关知识] 老板电器2021年营收能否破百亿?
08/16/2021 17:17
8月3日,老板电器(002508.SZ)发布2021年半年度报告。报告显示,公司2021年上半年实现营业收入43.26亿元,同比增长34.72%,实现归属于上市公司股东的净利润7.90亿元,同...
>> 查看全文
[家具相关知识] 含有甲醛的装修材料都有什么?如何除醛更快更安全?
08/16/2021 17:13
这两种材料少往家里用,被查出内含大量甲醛,家里有的要注意,想必不少朋友在装修新家时主要考虑的是美观与舒适度,而很少会考虑到甲醛污染这一因素。但大家要知道,甲醛对人体健康的威胁可是很大的,尤其对于老人...
>> 查看全文
[家具相关知识] 好视界投影仪怎么样?到底有没有真本事?
08/16/2021 16:14
因为经济适用的原因,现在很多人都对百元投影仪爱不释手,但往往“现实骨感”,实际使用差强人意。 这一次狗子在朋友们的催促下,决定讲一讲——好视界投影仪。原本感觉它不是很出众,我是不打算说它的...
>> 查看全文
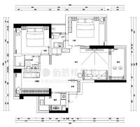
[家具相关知识] 名雕佰恩邦|深漂小两口的甜蜜小窝,这装修风格是你pick的吗...
08/16/2021 16:02
今天分享一套特别适合在深小两口住房的装修案例,简约中带着点浪漫的甜,让小户型也能享受大户型的宽敞舒适。 ▲案例原始户型图 项目信息 设计风格:北欧风格 项目面积:90平米 ...
>> 查看全文





